Property Description

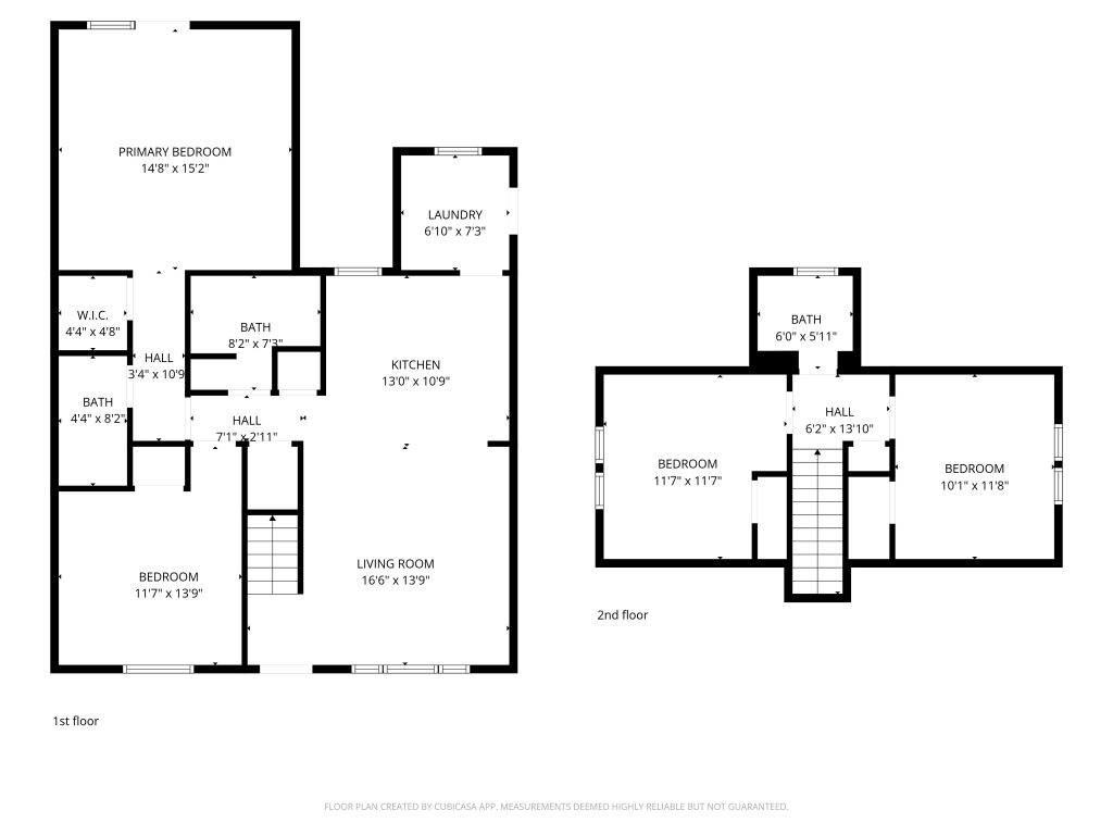
Aragona Village, VIRGINIA BEACH. UNDER CONTRACT - Welcome to this beautifully updated Virginia Beach home, offering 4 bedrooms and 3 bathrooms. Enter your open concept living room and eat in kitchen with SS electric range, dishwasher, and microwave leading to your laundry room and rear yard access. The main floor features your primary bedroom with ensuite bathroom, walk-in closet and rear yard access as well as your 2nd bathroom and 2nd bedroom. Upstairs, you'll find 2 additional bedrooms and a 3rd bathroom. Property features new paint and flooring throughout, updated lighting, ceiling fans, ample closet storage and more! This home is centrally located to all. Don’t miss your chance — schedule your showing today! Property has some virtual staging to showcase potential.

Asking Price: $385,000

Year Built1959
Bedrooms4
Bathrooms3
Floors2
Sq Ft1456
Lot Size9074

View Printable Flyer

Details:

  • Subdivision: Aragona Village
  • Basement: None, None
  • Exterior: Brick & Vinyl
  • Style: Ranch
  • Garage: Attached
  • County: Virginia Beach City
  • MLS #: 10623187

Contact: