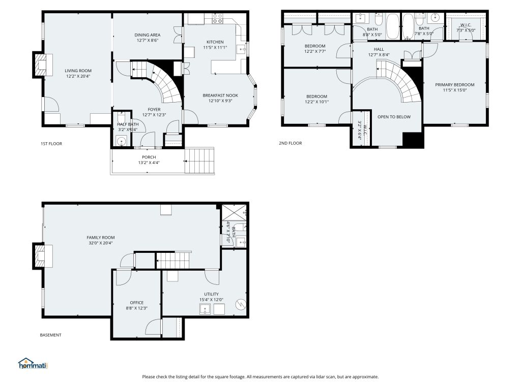
Property Description

Lakeford Community Association, Falls Church. End-unit brick townhouse with 3 levels, 2,684 SF, 3 beds (top level), 3.5 baths. Dramatic 2-story foyer w/spiral wood staircase, restored hardwoods in foyer/living/dining, carpeted bedrooms, tile kitchen/powder/basement. Updated kitchen appliances including 1" marble-look counters, maple cabinets; remodeled baths with new vanities & toilets. Finished walk-out basement to patio, new basement freezer and kitchen Levella beverage fridge conveys. New HVAC, air handler (4yrs), architectural roof with gutters (2019), ADT cameras convey, Fios fiber. Two reserved parking spaces, wood venetian & simulated wood blinds throughout convey, front landscape lighting, just painted all 3 levels—move-in ready. Invoices for major appliances/HVAC/roof.

Click Here for Virtual Tour

Asking Price: $822,000

Year Built1984
Bedrooms3
Bathrooms3.5
Floors3
Sq Ft2684
Lot Size2475

View Printable Flyer

Details:

  • Subdivision: Lakeford Community Association
  • Basement: Full, Full
  • Exterior: Brick/Siding
  • Style: Townhouse
  • Garage: None
  • County: Fairfax
  • MLS #: VAFX2299812

Contact: