Property Description

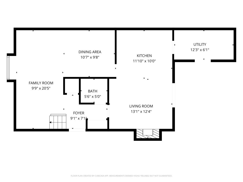
Jamestowne, VIRGINIA BEACH. UNDER CONTRACT - Check out this newly renovated Virginia Beach town home featuring 3 bedrooms and 2.5 bathrooms. Enter your spacious living room which leads to the dining room, kitchen, laundry room and family room with fireplace & back yard access. The kitchen features SS electric range, dishwasher, microwave and refrigerator. Upstairs you’ll find your primary bedroom with en-suite bathroom and walk in closet along with 2 additional bedrooms and a full bathroom. Enjoy new paint & flooring throughout, spacious layout, ceiling fans, updated lighting and ample closet space. This house is nearby to schools, shopping and more. Don’t miss your chance — schedule your showing today! Property has some virtual staging to showcase home’s potential.

Asking Price: $299,900

Year Built1978
Bedrooms3
Bathrooms2.5
Floors2
Sq Ft1636
Lot Size3170

View Printable Flyer

Details:

  • Subdivision: Jamestowne
  • Basement: None, None
  • Exterior: Wood
  • Style: Townhouse
  • Garage: None
  • County: Virginia Beach City
  • MLS #: 10627604

Contact: